Cargando...
Lanzarote Property 360
COMPRA/VENTA ALQUILER ALQUILER VACACIONAL
Idioma
English Deutsch Français Italiano Dansk Nederlands Português Čeština русский 中國的


Maneje, Arrecife, Lanzarote

Piso en venta
Piso venta en Maneje, Arrecife, Lanzarote.
<
>
PROMO. OBRA NUEVA
Imprimir cartel
215.500€

Obra nueva en Arrecife con diseño moderno y excelentes calidades

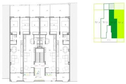
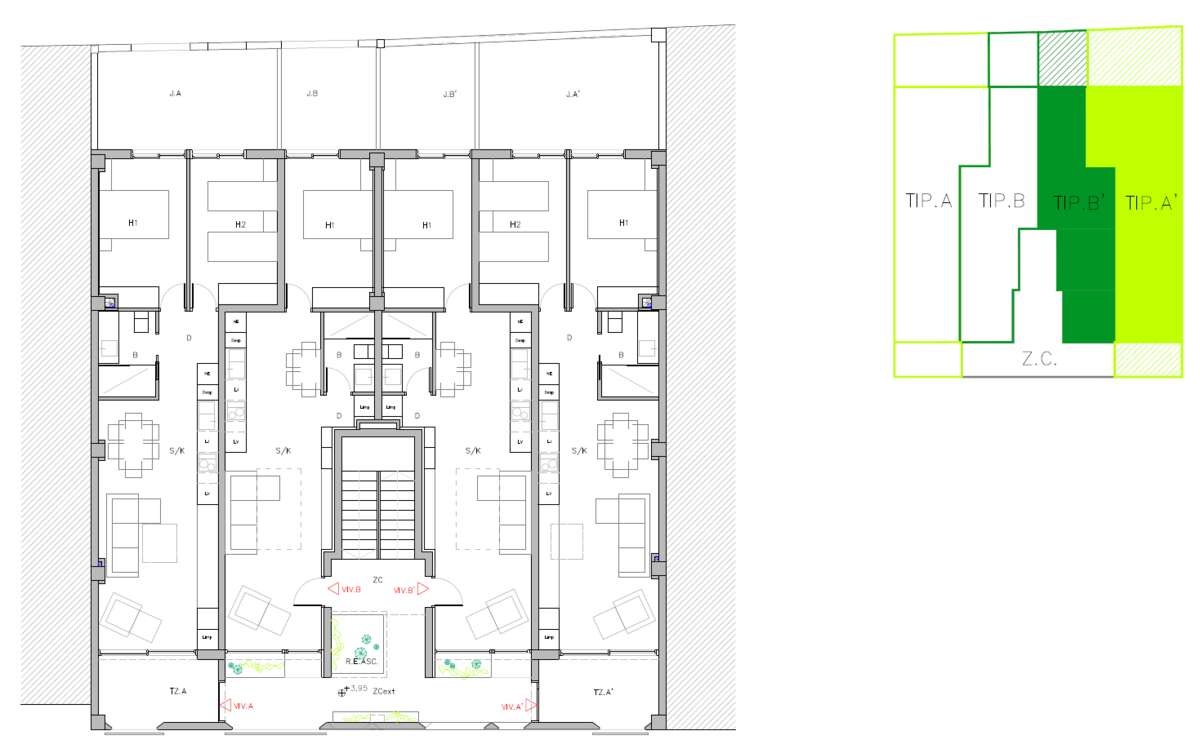
Te presentamos este exclusivo proyecto residencial en Maneje compuesto por viviendas de diferentes tipologías. En esta publicación te exponemos la tipología A.

Viviendas de aproximadamente 70 m² construidos, con una distribución funcional que incluye:
- 2 dormitorios
- 1 baño
- Salón – cocina amplio
- Terraza

Perfectas como vivienda habitual, ofreciendo comodidad y amplitud.
Las viviendas destacan por:
- Diseño actual y funcional
- Materiales de calidad
- Cocinas equipadas
- Espacios bien aprovechados

Ubicadas en una zona con buena conexión y todos los servicios cercanos.
TERMINADOS EN MARZO DE 2027
Una excelente oportunidad tanto para vivir como para obtener rentabilidad.
Referencia:
620212
Superficie:
70m²
Dormitorios:
2
Garaje:
Comunitario (1 plazas)
Tipo garaje:
Cerrado
Agua caliente:
Si
Aire acondicionado:
Frío-calor
Ascensor:
No

Fotos

Haz click sobre las fotos para verlas ampliadas:

Situación

Contacto

Información sobre propiedad

Por favor, completa los datos del formulario para enviar tu consulta:

Destinatario

Asunto

Mensaje

Nombre

Telefono

Email

Referencia



Código de seguridad



Avalora Canarias
https://www.avaloracanarias.es/
Tfn +34.928.805.375 +34.610.048.982
Facebook


Profesionales


Cómo anunciarte
Inmobiliarias
Contacta
RSS

©2017 Lanzarote Property360
Artek Soluciones Informáticas.
C. Doña Micaela Hernández, 1. Oficina 2.
Arrecife de Lanzarote.

Política de privacidad